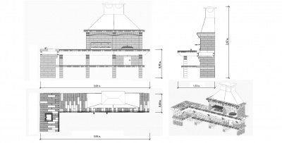
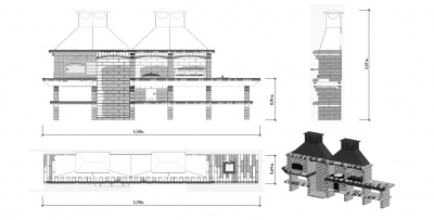
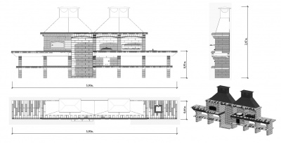
При покупке барбекю Аристократ заказчик может выбрать модель из существующих стандартных конфигураций или с нашей помощью сконфигурировать барбекю-комплекс под свои пожелания и габариты. Зона барбекю может располагаться и Дома и на Улице, в беседке, на террасе или под открытым небом. Комплекс барбекю может быть составлен из модулей различного назначения, в произвольном порядке, по Вашему желанию. Мангалы футерованы шамотными плитами для предотвращения взаимодействия металла и пламени. Шамотные плиты накапливают и отдают тепло по всей площади мангала и обеспечивают более равномерную прожарку. При желании Вы можете собрать печь-барбекю самостоятельно. Для этого Вам не потребуется какая-либо строительная или подъемная техника — все детали можно поднимать и переносить руками, с этой работой могут справиться два взрослых человека.

